Top.Mail.Ru
nsk@dia-m.ru 8 (800) 234-05-08
+7 (383) 328-00-48
Ваш регион Москва?

Вернуться назад

Шкаф вытяжной общего назначения, ширина 160 см, корпус – металл, столешница – искусственный камень Polystone, химический, ШВ-«Ламинар-С»-1,6 All-химик, Ламинарные системы

Артикул Цена, руб. Наличие на складе Количество
1R-E.003-16.0
РУ
Регистрационное удостоверение на медицинское изделие Росздравнадзора
792 000 Под заказ

Описание

Каталоги, буклеты, видео

Оплата и доставка

Шкафы вытяжные общего назначения, химические

Шкафы данной модификации применяются для проведения химико-аналитических исследований материалов, связанных с возникновением и распространением токсичных паров и газов, вредных для здоровья человека. Используются в составе с внешней вытяжной системой в лабораториях различного профиля.

Шкафы не предназначены для работы с опасными и потенциально опасными патогенными агентами и микроорганизмами.

Общее описание:

  • Корпус — цельнометаллический, окрашенный;
  • столешница — искусственный камень PolyStone;
  • лицевое стекло — подъемное, материал — закаленное стекло, бронированное пленкой;
  • подъем/опускание лицевого стекла с помощью электропривода;
  • боковые панели — закаленное стекло;
  • задняя стенка — нержавеющая сталь AISI 304;
  • лампа освещения с защитным экраном расположена в рабочей камере;
  • освещение — светодиодное;
  • вытяжной воздуховод из нержавеющей стали;
  • забор воздуха с трех уровней (верхнего, среднего и нижнего) через решетки на задней стенке шкафа;
  • все элементы управления — на передней панели для предотвращения контакта оператора с вредной средой;
  • встроенный блок евророзеток для подключения лабораторных приборов;
  • обратный клапан, исключающий возможность обратного тока воздуха;
  • фланец для подсоединения к внешней вытяжной системе, d = 250 мм;
  • кнопочный выключатель питания шкафа с индикатором включения;
  • автоматические выключатели для автономных розеток с индикаторами включения;
  • поворотный выключатель для подъем/опускания лицевого стекла;
  • рамочная подставка с полкой для ног;
  • винтовые опоры для стационарной установки шкафа.

Регистрационное удостоверение Росздравнадзора № РЗН 2015/3553 от 25.01.2016 г.


ШВ-«Ламинар-С»-1,6 All-химик

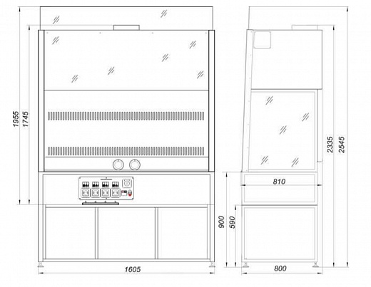
  • Габариты (с поднятым стеклом), Ш × Г × В, мм ― 1605 × 810 × 2545;
  • рабочая зона, Ш × Г × В, мм ― 1510 × 720 × 820;
  • масса шкафа с подставкой, кг ― 370;
  • мощность потребления (без учета нагрузки на розетки), Вт ― 300;
  • суммарная максимальная нагрузка на встроенные блоки розеток, Вт ― 2500.

Дополнительные опции:

  • панель боковая с двухуровневыми сдвижными стеклами;
  • мойка-слив DURCON;
  • накладная встраиваемая мойка DURCON;
  • накладная встраиваемая мойка FRIDURIT;
  • кран (патрубок-гусак) латунный с дистанционным управлением;
  • кран с дистанционным управлением для деионизованной воды;
  • кран (патрубок-гусак) из нержавеющей стали с дистанционным управлением;
  • полка съемная;
  • полка на боковой рамке;
  • забор воздуха с трех уровней регулируемый;
  • вытяжной вентилятор химически стойкий трехфазный;
  • вытяжной вентилятор химически стойкий однофазный;
  • УФ-облучение рабочей камеры стационарное;
  • тумба выкатная с распашной дверкой;
  • тумба выкатная (с ящиками/с лотком/с полками);
  • столешница DURCON шириной 1,6 м;
  • столешница FRIDURIT шириной 1,6 м.
Раскрыть описание

Доставка

Доставка осуществляется по всей России и странам СНГ. Возможен самовывоз со склада по адресу Московская область, г. Мытищи, 7-й Ленинский переулок, д.13. Доставка по Москве и Московской области осуществляется бесплатно.

Цена товара указана со склада в Москве и не включает расходы на доставку в другие города.

Вы можете выбрать способ доставки в личном кабинете, чтобы он автоматически указывался при оформлении всех последующих заказов. При выборе варианта «Транспортная компания по выбору клиента» укажите в комментариях транспортную компанию, с которой вы предпочитаете работать.

Точная стоимость доставки рассчитывается менеджером при подтверждении заказа в зависимости от весообъемных характеристик и дальности. Товары, требующие особого температурного режима, доставляются с соблюдением требуемых условий. Если в заказе есть прекурсоры, необходимо оформить официальное письмо об отпуске прекурсоров. (образец письма об отпуске прекурсоров)


Оплата

Компания Диаэм работает с юридическими и физическими лицами. После оформления заказа продавец-консультант сформирует счет и направит его вам по электронной почте и на страницу заказа в Личном кабинете на сайте. Вы также можете сами сформировать счет из Корзины, авторизовавшись на сайте. Счет оплачивается через банк. Вы можете оплатить товар в кассе Диаэм или любом отделении банка.

Для получения товара необходимо предоставление доверенности организации, а для получения товара при оплате физическим лицом необходим паспорт.

Раскрыть анкету для отправки запроса

Похожие товары
Ваш заказ будет обработан
в ближайшее время.
Мы пришлем уведомление, как только все будет готово. Спасибо!